Het karakteristieke ‘Huize Liesbosch’ ligt net binnen de grenzen van de gemeente Breda aan de Liesboslaan en de A58 richting Etten-Leur. Het pand kent een bijzondere geschiedenis en bestaat uit een aaneenschakeling van bouwvolumen, die in verschillende perioden tussen 1830 en 1971 zijn ontstaan. Alle vernieuwingen die sinds 2011 zijn gedaan tijdens de gefaseerde sloop en nieuwbouw, hebben raakvlakken met dit verleden. 

Het verleden en heden ontmoeten elkaar

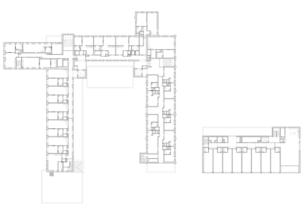
Het bestaande gebouwencomplex kenmerkt zich door een U-vormige bouwmassa die in verschillende bouwperioden tot stand is gekomen. Hierdoor is er sprake van verschillende contemporaine architectuurstijlen, waarbij de hoge architectuurhistorische waarden vooral te vinden zijn aan de voorzijde van het gebouw. De bouwvolumes worden aan de oost- en zuidzijde rijkelijk omsloten zijn door groene bospercelen. 

In de eerste fase van de herontwikkeling is, op de positie van de oorspronkelijke recreatiezaal en het mortuarium, een nieuw zorgcentrum gerealiseerd voor Thebe. Door de ontwikkelde gebouwstructuur en het gevelontwerp is er maximaal rekening gehouden met de omgevingsaspecten en context van de locatie. Zo is er gekozen voor metselwerk in een lichte geeltint, een volledig witte gevel aan de zuidkant en zijn in de noordgevel verticale houten delen toegepast op de verdiepingen, waarmee de uitsnede geaccentueerd wordt. 

Parallel aan dit proces zijn in de bestaande oostvleugel zorgappartementen gerealiseerd voor de Congregatie van de Kleine Zusters van de Heilige Joseph. Deze zusters hebben zich in de jaren daarvoor ingezet voor de zorg van bejaarde congregatieleden in Huize Liesbosch. Aan de achterkant van het bestaande gebouw is een nieuwe recreatiezaal voorzien die uitkijkt over de bestaande kloostertuin en het zuidelijke bosperceel.  

In de laatste fase van deze herontwikkeling wordt de westvleugel volledig gerenoveerd, waarin reguliere appartementen worden gerealiseerd. 

Een rijke historie

De bijzondere geschiedenis van Huize Liesbosch gaat terug tot 1830 en heeft in al die jaren verschillende functies gehad. Het van origine herenhuis werd in 1879 het gerenommeerde familiehotel ‘Huis ten Bosch’. In 1904 kwam het pand in eigendom van de Zusters Benedictinessen van het Heilige Sacrament en werd er aan het bestaande gebouw een vleugel met rectoraat toegevoegd. Na enige tijd werd het klooster betrokken door de Fraters van het Heilige Hart en werd het pand in 1921 uitgebreid met nog een vleugel. 

Door de blijvende toename van de groep Fraters moest het oorspronkelijke hoofdgebouw plaatsmaken voor een nieuw gebouw voorzien van eenextra verdieping. Nadat het gebouw in 1971 werd aangekocht door de Congregatie van de Kleine Zusters van de Heilige Joseph, werd het complex voorzien van een extra verdieping, twee liften en een recreatieruimte. 

Uitvoering