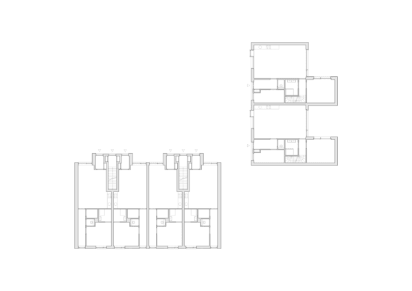
Achter de vestiging van een bouwmarkt aan de Hoge Ham te Dongen, maken de voormalige opslagloodsen plaats voor 8 appartementen en 2 grondgebonden woningen. De woningen kunnen door de sloop van de verouderde opstallen ontsloten worden via de Jan Willemenstraat waarmee aansluiting wordt gevonden op de bestaande woonwijk.

Ingetogen detaillering

Door dit inbreidingsplan wordt een ‘achterkant’ situatie getransformeerd naar een aansluiting op het bestaande weefsel. Met een bescheiden bebouwingskorrel van maximaal 2 bouwlagen, een ingetogen en onderscheidende metselwerk detaillering doet het plan recht aan deze nieuwe voorkant situatie.