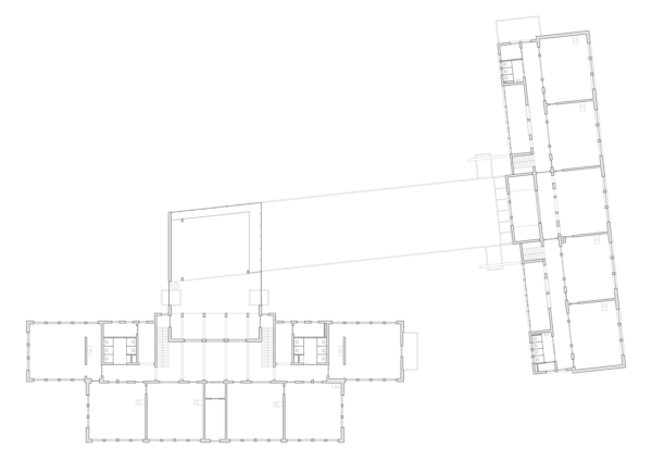
De snel groeiende Montessorischool in Breda betrok twee bestaande schoolgebouwen uit de jaren vijftig op de hoek van het Van Almondepad en de Jan Nieuwenhuyzenstraat. Deze bestaande schoolgebouwen zijn gerenoveerd en gekoppeld met extra toegewezen programma zoals een gymzaal, kinderdagopvang en de kantoorruimtes voor het onderwijzend personeel. Deze verbinding vormt de fysieke schakel tussen de twee bestaande gebouwen. De positie van het nieuwe bouwvolume en de aansluiting op de bestaande schoolgebouwen is zo gekozen dat de bouwkundige- en programmatische structuur ongewijzigd is gebleven.