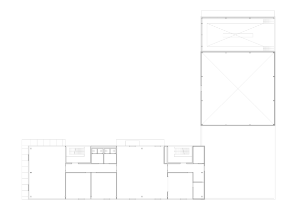
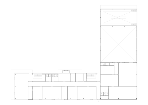
De gemeentewerf Hoeksche Waard voorziet in een milieustraat voor particulieren en de professionele bedrijfshuisvesting van de gemeente Westmaas. Naast het brengstation voorziet het plan in een stalling voor vuilnisauto’s, een werkplaats met wasstraat en een kantoorvolume.

Uniforme gebouwconstructie

De gebouwconstructie is uniform toegepast voor alle bouwdelen. De stalling en werkplaats met wasstraat zijn met een eenvoudige staalconstructie opgebouwd. Deze basis is ook toegepast voor het kantoorgebouw, waarbij de staalconstructie een open gevelstructuur mogelijk maakte: doorlopende glasstroken en banden met keramische tegels.

De route van de Smidsweg naar de milieustraat is zodanig ontworpen dat filevorming op de openbare weg wordt voorkomen.

Uitvoering