De ontwikkeling van het plangebied Tussen de Leijen biedt ruimte voor de velden en de clubaccommodatie van de voetbalvereniging Jeka en aan een verbetering van de landschappelijke invulling van het gebied.

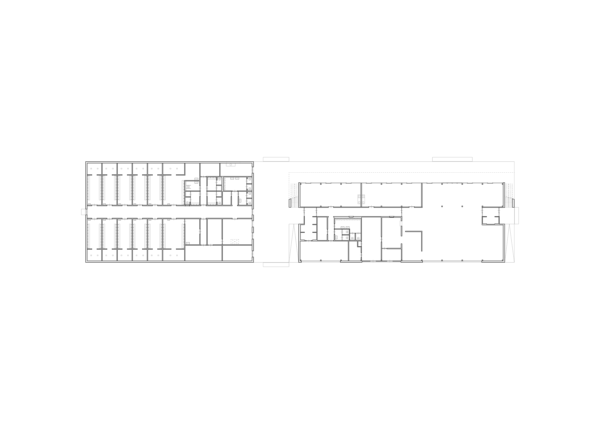
De accommodatie bestaat uit twee delen: een clubhuis met daarboven een overdekte tribune, en de kleedkamers. De twee gebouwen vormen een geheel door de vorm en materiaalgebruik. De verhoogde plint waar beide bouwdelen op staan is een extra verbindend element. 

Sport inpassen in het landschap

De ontwerpuitdaging betrof vooral de zoektocht naar een minimale impact van de gebouwen en de velden op de omliggende natuur. Een ontwerp waarbij de accommodatie zo bescheiden mogelijk in het landschap ondergebracht is. 

Langs de hoofdstructuur in noordoostelijke richting zijn een drietal bomenlanen geplaatst waartussen telkens clusters van twee velden zijn opgenomen. De gebouwen zijn centraal in het plangebied geplaatst. 

De tribune, de betonnen plint en het veld

Een betonnen plint is de drager van de gebouwen. De gebouwen staan iets hoger dan het maaiveld waardoor toeschouwers op drie niveaus naar het veld kunnen kijken; aan het veld, op het terras op de betonnen plint en op de tribune. De gevelbekleding van de tribune, inclusief de toegangen aan weerszijden van de clubaccommodatie, is met verticale houten delen afgewerkt.

De sfeer van de groene omgeving in materialen

Aan de Beukenlaan staan twee soorten bomen: de beuk en de eik. De weerbarstige en onregelmatige schors van de beukenbomen is de inspiratie geweest voor de textuur van de gevelsteen. Deze steen vertoont sinteringen en is expres vervormd om het reliëf van de steen zo dicht bij de vorm van de schors te laten komen. 

Schaduw en detail in bladerendak van de eikenboom

In de kopse gevel van de was- en kleedaccommodatie is het letterlijke patroon van eikenbladeren verwerkt. Dit regelmatige patroon is vervaardigd van schoonwerkbeton waarvoor een speciale mal is gemaakt. De natuurlijke dieptewerking in het bladerdak is overgebracht in de betongevel.