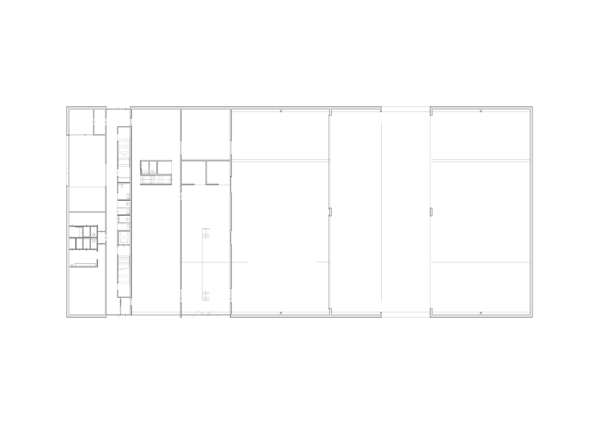
In gemeentewerf De Kets zijn in één bouwvolume kantoren, werkplaats, opslag, garage en open stalling te vinden. De functies lopen op in kwaliteit zonder dat deze overgang zichtbaar is in de gevel. Vanwege de logistiek en specifieke materiaalkeuze is de zoutloods als een los volume op de werf geplaatst.

Tussen de garage en de open stalling is een open ruimte waar voertuigen vrij kunnen bewegen. Zo kunnen ‘s nachts de strooiwagens geladen worden.

Een bouwvolume met één gezicht, zonder hiërarchie tussen de afzonderlijke functies

De opgave bestond uit het realiseren van verschillende gebouwen met ieder een eigen functie en ruimtelijke en technische kwaliteit. We kozen ervoor om deze verschillende gebouwen te verenigen in één bouwvolume. Door kostenefficiëntie ontstond een goede balans tussen de logistieke eisen, ruimtelijke en technische kwaliteiten. Een bouwvolume met één gezicht, zonder hiërarchie tussen de afzonderlijke functies.

‘Het is niet vanzelfsprekend dat je door het naast elkaar zetten van de volumes een goed gebouw krijgt. Door een goede analyse van de logistieke en ruimtelijke eisen die gesteld werden aan de afzonderlijke functies, zijn we in staat geweest het volledige programma in één bouwvolume te ontwerpen.’

Robuust in de omgeving

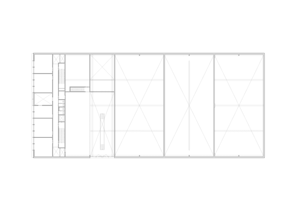
Een gemeentewerf is een plek die bestand moet zijn tegen zwaar werk, zoals het storten en sorteren van afval. Daarom hebben we een robuust gebouw ontworpen. De opeenvolging van functies zijn fysiek gescheiden door in het werk gestorte schoonwerk betonwanden. 

De gehele schil van gevel en dak is in de basis opgebouwd uit gasbeton elementen en bekleed met een gevelplaat van natuursteengranulaat. Gasbeton wordt gekenmerkt door een grote vrije overspanning en een sterk isolerend vermogen. De ruimte tussen het gasbeton en de gevelplaat is, waar nodig, gevuld met extra isolatie.

Focus op tactiliteit

Het hele gebouw beweegt mee met de schaalbeleving van de gebruiker. De opeenvolgende zones lopen van grof naar fijn. De metalen Z-profielen vormen samen met de natuursteengranulaat panelen de horizontale geleding van het gebouw. De maat van de panelen en de profielen wordt kleiner en meer gedetailleerd naarmate de achterliggende functie een hogere kwalitatieve eis stelt binnen het bouwvolume. Een subtiele verwijzing naar de aandacht voor het detail en de ruimtelijke en technische kwaliteit.